Uf od 0,99 W/m²K
IZOLACJA CIEPLNA
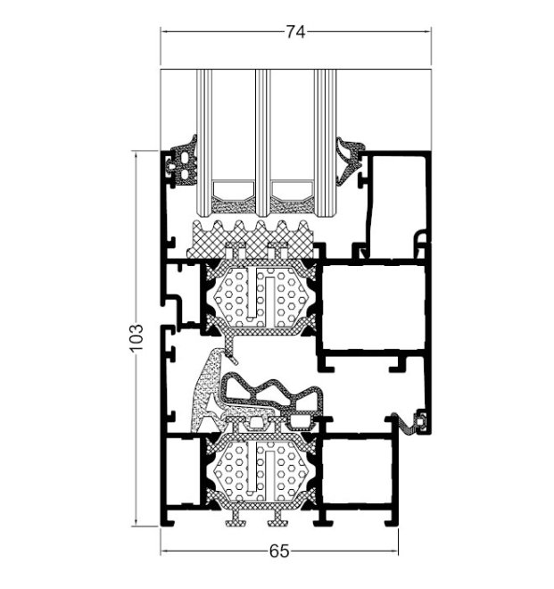
fix od 4 mm do 49 mm,
okno od 4 mm do 55 mm
SZKLENIE
65 mm
GŁĘBOKOŚĆ PROFILI
103 mm
WYSOKOŚĆ ZŁOŻENIA – OŚCIEŻNICA/SKRZYDŁO

- trójkomorowy system okienny o podwyższonej izolacyjności termicznej
- parametry termiczne okna Genesis 65 spełniają wymagania obowiązujące od roku 2021 (Uw od 0,90)
- podstawą systemu Genesis 65 są kształtowniki ram o głębokości 65 mm
- duży zakres profili oferowanych w ramach systemu Genesis 65, umożliwia projektowanie nowoczesnych okien, witryn charakteryzujących się wysoką funkcjonalnością i estetyką
- w systemie Genesis 65 zastosowano nowoczesne materiały izolacyjne: obok klasycznej okiennej uszczelki centralnej zapewniającej wysoką szczelność (infiltracja powietrza, wodoszczelność); zaprojektowano dodatkową uszczelkę termiczną, podnoszącą izolacyjność termiczną okien
- w systemie możliwy wybór różnych wykończeń profili (również profile renowacyjne), nadający konstrukcji okna indywidualny charakter
- system umożliwia również wykonanie całoszklanego połączenia narożnika pod kątem 90 stopni
- dostępna opcja Genesis OUT- okna otwierane na zewnątrz
- dostępna opcja Genesis SU – opcja ukrytego skrzydła
- Genesis 65 to system przeznaczony do projektowania konstrukcji okiennych zarówno w budynkach użyteczności publicznej, jak i w zabudowie jedno lub wielorodzinnej
- istnieje możliwość montażu systemu Flyscreen, Insect System, Insect Screen (systemy moskitier przeciwko owadom)
- szeroki wybór kolorystyki – paleta RAL (Qualicoat 1518), kolory strukturalne, Aliplast Wood Colour Effect – kolory drewnopodobne, Aliplast Loft View – kolory imitujące kamienne powierzchnie (Qualideco PL-0001), anoda (Qualanod 1808), bikolor
Specyfikacja produktu
| System | materiał | głębokość ościeżnicy | głębokość skrzydła | grubość szklenia | typ okien |
| GENESIS 65 okno (GR) | aluminium/poliamid | 65 mm | 74 mm | fix od 4 mm do 49 mm, okno od 4 mm do 55 mm | FIX, R, U, RU |
Dane techniczne
| System | GENESIS 65 i+ | GENESIS 65 i | GENESIS 65 |
| izolacjyjność termiczna Uf * | Uf od 0,99 W/m2K | Uf od 1,47 W/m2K | Uf od 1,703 W/m2K |
*Izolacyjność termiczna uzależniona jest od kombinacji złożeń profili oraz grubości wypełnienia.

