Uf od 1,13 W/m²K
IZOLACJA CIEPLNA
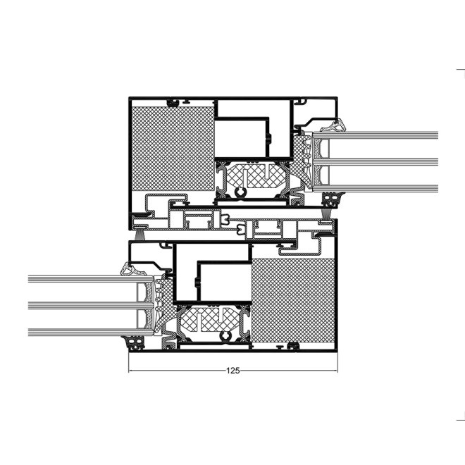
skrzydło 14-52 mm
SZKLENIE
od 153 mm do 239 mm
GŁĘBOKOŚĆ OŚCIEŻNICY
146,5 mm
WYSOKOŚĆ ZŁOŻENIA – OŚCIEŻNICA/SKRZYDŁO

- system o podwyższonej izolacyjności termicznej przeznaczony do projektowania konstrukcji przesuwnych lub podnoszono przesuwnych
- konstrukcje przesuwne UG przeznaczone są do stosowania w obiektach budownictwa mieszkaniowego, głównie indywidualnego i użyteczności publicznej
- system dostosowany do najnowszych wymagań w dziedzinie izolacyjności termicznej, estetyki i bezpieczeństwa: dostępne opcje systemu:
UG wersja z niskim progiem,
UG – rozwiązanie kątowe 90° - dzięki swoim parametrom system ULTRAGLIDE pozwala na projektowanie konstrukcji o bardzo dużych gabarytach skrzydeł jezdnych: maksymalne wymiary konstrukcji możliwe do wykonania w tym systemie to: wysokość skrzydła Hs=3300 mm i szerokość skrzydła Bs=3500 mm
- system ULTRAGLIDE umożliwia konstruowanie dużych, a jednocześnie stabilnych okien i drzwi przesuwnych, o maksymalnej wadze skrzydeł wynoszącej: 250 kg dla opcji przesuwnej, i 400 kg dla opcji podnoszono-przesuwnej
- budowa konstrukcji: ościeżnica: system 3 ,5 i 7 komorowy
- możliwe kombinacje dwu-, trzy- i czteroelementowe na bazie systemu dwutorowego
- profile dostosowane są do montażu wielu dostępnych na rynku okuć ryglowanych ręcznie i za pomocą automatyki
- możliwość zastosowania różnego typu wypełnienia (szyba jedno-, dwukomorowa)
- system dostosowany do najnowszych wymagań w dziedzinie izolacyjności termicznej: w systemie zastosowano: przekładkę termiczną o szerokościach 22 mm i 28 mm wzbogaconą dodatkiem włókna szklanego, wkłady termiczne oraz wkłady podszybowe poprawiające izolacyjność termiczną przekroju
- dostępne opcje: wersja UG, UG i, UG i+
- szeroki wybór kolorystyki – paleta RAL (Qualicoat 1518), kolory strukturalne, Aliplast Wood Colour Effect – kolory drewnopodobne, Aliplast Loft View – kolory imitujące kamienne powierzchnie (Qualideco PL-0001), anoda (Qualanod 1808), bikolor
Specyfikacja produktu
| System | materiał | głębokość ościeżnicy | głębokość skrzydła | GRUBOŚĆ SZKLENIA | CIĘŻAR SKRZYDŁA | Akustyka | TYP DRZWI |
| UG | aluminium / materiał izolacyjny | od 153 mm do 239 mm | 67 mm | skrzydło 14-52 mm | do 400 kg | 43 (-2,-6) dB | przesuwne, podnoszono-przesuwne |
| UG i+ | aluminium / materiał izolacyjny | od 153 mm do 239 mm | 67 mm | skrzydło 14-52 mm | do 400 kg | 43 (-2,-6) dB | przesuwne, podnoszono-przesuwne |
Dane techniczne
| system | IZOLACYJNOŚĆ TERMICZNA UF* | PRZEPUSZCZALNOŚĆ POWIETRZA | OBCIĄŻENIE WIATREM | WODOSZCZELNOŚĆ |
| UG | Uf od 1,45 W/m2K | Klasa 4; PN-EN 12207 | Klasa C4 (1600Pa); PN-EN 12210 | Klasa 9A (600 Pa); PN-EN 12208 |
| UG i+ | Uf od 1,13 W/m2K | Klasa 4; PN-EN 12207 | Klasa C4 (1600Pa); PN-EN 12210 | Klasa 9A (600 Pa); PN-EN 12208 |
*Izolacyjność termiczna uzależniona jest od kombinacji złożeń profili oraz grubości wypełnienia


