Uw = 0,76 W/m²K
IZOLACJA CIEPLNA
Od 52 mm (Z uszczelką tradycyjną) do 54mm (z technologią STV®)
SZKLENIE
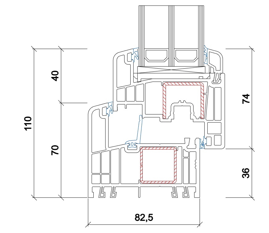
82,5 mm
GŁĘBOKOŚĆ PROFILI
110 mm
WYSOKOŚĆ ZŁOŻENIA – OŚCIEŻNICA/SKRZYDŁO

system S 9000
W WERSJI Z USZCZELKĄ ŚRODKOWĄ (MD)
System S 9000 w wersji z uszczelką środkową jest ekstremalnie ciepły.
Zabudowa o głębokości 82,5 mm, sześciokomorowa konstrukcja
ościeżnicy i skrzydła oraz przemyślany układ uszczelnienia gwarantują
doskonałą izolacją cieplną. Dzięki temu okna w systemie S 9000
z uszczelką środkową spełniają najwyższe wymagania.
GEALAN-ACRYLCOLOR® –
GEALAN-ACRYLCOLOR® –
WYJĄTKOWA POWŁOKA OKIENNA
Od prawie 40 lat GEALAN wytwarza kolorowe profie w niezawodnej
technologii GEALAN-acrylcolor®. Kolorowa powłoka ze szkła akry
lowego jest dwa razy twardsza aniżeli PVC, z którego wykonane są
zwykłe białe okna i wykazuje doskonałe właściwości użytkowe. Ide
alnie gładka, satynowa powierzchnia okien GEALAN-acrylcolor® sta
nowi z jednej strony skuteczną barierę dla czynników zewnętrznych
takich jak słońce czy grad, z drugiej strony nadaje oknom elegancki
wygląd i gwarantuje trwałość koloru przez lata.

kolory w systemie S 9000
GEALAN oferuje różne możliwości, jeśli chodzi o wykańczanie kolorystyczne okien z PCW. Jedną z nich jest sprawdzona technologia powierzchniowa GEALAN-acrylcolor®. Kolorowa warstwa akrylowa jest odporna na zadrapania, łatwa w pielęgnacji i odporna na warunki atmosferyczne. Okna pomalowane w technologii GEALAN-acrylcolor® spełniają tym samym najwyższe wymagania techniczne i użytkowe stawiane innowacyjnym barwnym powierzchniom.
Liczne możliwości aranżacji kolorystycznych profili okien i drzwi zapewnia również kompleksowa paleta folii dekoracyjnych GEALAN. Liczne warianty kolorystyczne są również dostępne w standardowym programie dostaw. Dodatkowe odcienie i tekstury są dostępne na zapytanie w zależności od danego obiektu.

OKLEINY – BOGACTWO
KOLORÓW
Ten, kto ceni naturalny wygląd,
a jednocześnie chce wykorzystać wszystkie
zalety nowoczesnej techniki okiennej, ma tyl
ko jedną alternatywę – okna z PVC w okleinie
drewnopodobnej. Są godne polecenia jako
element klasycznego stylu przy renowacji
różnorodnych obiektów oraz jako motyw
wystroju współgrający z otaczającym kra
jobrazem. Dzięki oknom w okleinie drewno
podobnej architektura nabiera szczególnej
estetyki.

REALWOOD® –
NATURALNY EFEKT DREWNA
Okleiny Realwood® idealnie odwzorowują pra
wdziwe usłojenie drewna. Ponadto mają zde
cydowanie mniejszy połysk aniżeli standardo
we okleiny. Dzięki temu nadają oknom świeży,
naturalny wygląd. Struktura oklein Realwood®
doskonale imituje prawdziwe drewno. Okna
wyglądają jak drewniane chociaż nie są wykona
ne z drewna. Paleta oklein Realwood® obejmu
je sześć jednobarwnych odcieni. Niewątpliwie
zalety użytkowe oklein Realwood® takie jak:
trwałość, odporność na promieniowanie UV
i inne czynniki atmosferyczne sprawiają, że
czysz czenie i pielęgnacja okien w okleinach
Realwood® przebiegają wyjątkowo łatwo.

NAKŁADKI ALU – NOWO
CZESNY WYGLĄD ALU
MINIUM
Okna z nakładkami aluminiowymi łączą zale
ty dwóch materiałów aluminium oraz tworzy
wa sztucznego. Nowoczesny wygląd alumini
um dodaje architekturze dyskretnej elegancji
przy jednoczesnym zachowaniu wszystkich
zalet stolarki z PVC. Dzięki bogatej palecie ko
lorystycznej okna z nakładkami aluminiowy
mi stwarzają nieograniczone możliwości
twórczego projektowania własnej przestrze
ni, są przy tym wyjątkowo trwałe i odporne
na działanie czynników atmosferycznych.

