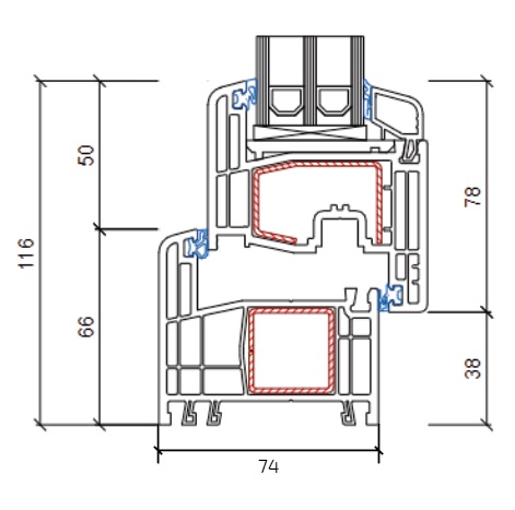
Gealan
S8000
Date valore all’isolamento termico e
volete conferiere alla Vostra casa
grazie alla superficie colorato o all’
effeto legno delle Vostre finestre un
look individuale? Vi consigliamo il
sistema a 6 camere.


Nella sviluppo dei sistemi S8000 IQ un particolare occhio di riguardo e’ stato dedicato alla stabilita’ dei profili.
Per garantire la rigidita’ delle camere dei nostri profili utilizziamo acciai stabili, rinunciando all’impiegno di
rinforzi in materiale plastico piu’ economico.
I vantaggi Win S8000:
- piu’ alti valori di isolamento termico e acustico,
- maggiore stabilita’,
- un’ampissima gamma di combinazioni di colore,
- facilita’ di pulizia
- una protezione antieffrazione di alto livello
