Gealan
Linear
Il design semplice si presenta
fresco e senza tempo e in linea
con il linguaggio
del’architettura moderna.
Propio negli edifici nuovi, forme
angolari e linee nette delineano
la tendenza verso facciate
aperta e sobrie.


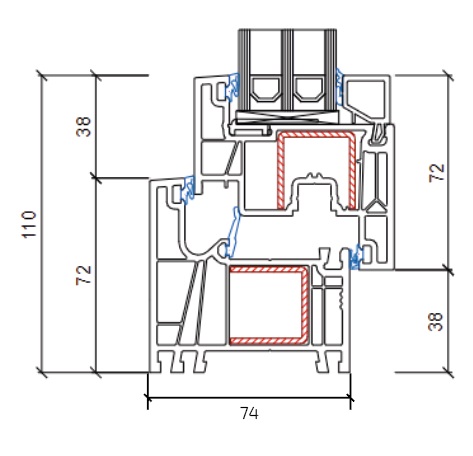
EVOLUZIONE IN PROFONDITA’ DI COSTRUZIONE DA 74 MM
PROFILO OTTIMO PER MOLTE SITUAZIONI COSTRUTTIVE
La sottile profondita’ di costruzione dei 74mm e’ adatta a una serie di progetti di
costruzione come ristrutturazioni, ammoderamenti e nuovi edifici. Inoltre
LINEAR e’ conforme ai massimi requisti di isolamento termico e stabilita’ e,
grazie al nucleo riciclato e’particolarmente ecosootenibile.
