UF od 1,05 W/m²K*
IZOLACJA CIEPLNA
od 27 mm do 71 mm
SZKLENIE
od 200 mm
GŁĘBOKOŚĆ OŚCIEŻNICY

- nowoczesny system o podwyższonej izolacyjności termicznej przeznaczony do projektowania konstrukcji podnoszono – przesuwnych
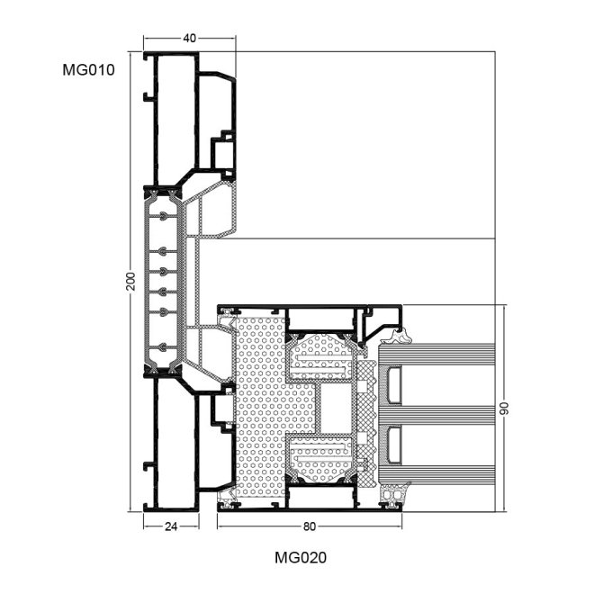
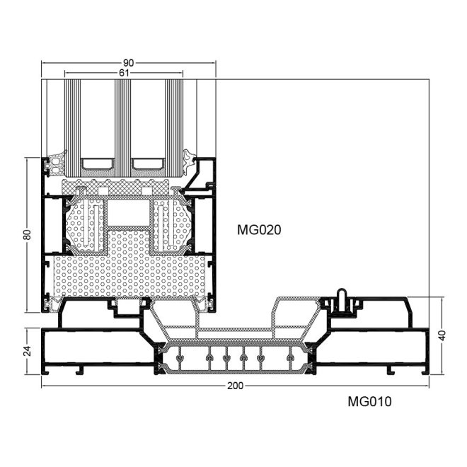
- głębokość ramy: 200 mm, głębokość skrzydła to 90 mm (jako odpowiednik głębokości zabudowy systemu okiennego Genesis 90)
- profile wyposażone w przekładki termiczne w rozmiarach dotychczas niestosowanych w systemach Aliplast:
– szerokość przekładki termicznej w ramie: 80 mm
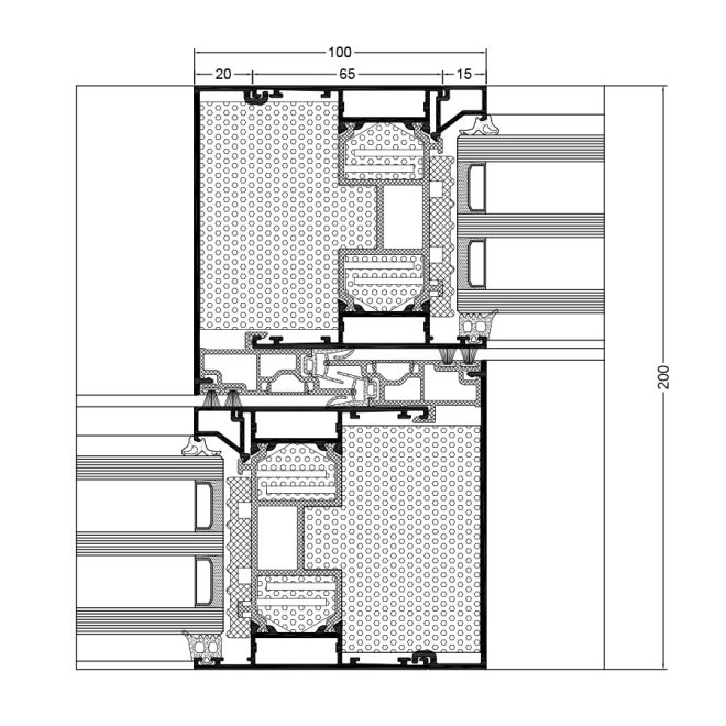
– szerokość przekładki termicznej skrzydła: 65 mm - mimo dużej głębokości zabudowy, system INFERNO charakteryzuje się dużą lekkością wizualną: wymiar widoczny zachodzenia skrzydeł jest niższy niż w dotychczasowych konstrukcjach – wynosi 100 mm (poprzednie rozwiązania: złożenie ramy ze skrzydłem 112 mm)
- skrzydła przystosowane do instalowania pakietów szklanych o grubości nawet 71 mm; ich waga może osiągnąć nawet 600 kg
- w systemie zastosowano innowacyjne rozwiązanie przeniesienia całkowitej wagi wypełnienia bezpośrednio na wózki okuciowe, a z nich na tor jezdny i ramę. Pozwala to na lepszą pracę skrzydła. Jako nowość zasuwnice w skrzydłach posiadają haki lub bolce zamaskowane w skrzydle, natomiast na ramie są listwy zaczepowe w anodzie lub kolorze stolarki
- możliwe jest również stosowanie okuć tradycyjnych z zaczepami ramowymi
- INFERNO zaprojektowano jako system dwutorowy, z możliwością rozbudowy ilości torów
- możliwe jest również szklenie od zewnątrz – przyjazne przy stosowaniu dużych i ciężkich szyb, które łatwiej zainstalować od zewnątrz budynku
- system INFERNO dostosowany do najnowszych wymagań w dziedzinie izolacyjności termicznej, estetyki i bezpieczeństwa
- możliwość zastosowania różnego typu wypełnienia (szyba jedno-, dwukomorowa)
- system umożliwia zastosowanie dużych przeszkleń, co zapewnia doskonałe doświetlenie wnętrz oraz ułatwia ich aranżację, zachowując jednocześnie stabilność, funkcjonalność i lekkość konstrukcji
- maksymalne wymiary konstrukcji:
wysokość skrzydła Hs=3000 mm i szerokość skrzydła Bs=3000 mm /Sobinco/ - konstrukcje podnoszono-przesuwne INFERNO przeznaczone są do stosowania w obiektach budownictwa mieszkaniowego, głównie indywidualnego oraz użyteczności publicznej
- szeroki wybór kolorystyki – paleta RAL (Qualicoat 1518), kolory strukturalne, Aliplast Wood Colour Effect – kolory drewnopodobne, Aliplast Loft View – kolory imitujące kamienne powierzchnie (Qualideco PL-0001), anoda (Qualanod 1808), bikolor
Specyfikacja produktu
| System | Materiał | Głębokość ościeżnicy | Głębokość skrzydła | Grubość szklenia | Typ drzwi |
| Inferno (MG) | aluminium/poliamid | od 200 mm | 90 mm | od 27 mm do 71 mm | podnoszono-przesuwne |
Dane techniczne
| System | Izolacjyjność termiczna Uf * | Przepuszczalność powietrza | Obciążenie wiatrem | Wodoszczelność |
| Inferno (MG) | od 1,05 W/m2K | klasa 4; PN-EN 12207 | C3/B3 (1200Pa); PN-EN 12210 | E1200 (1200Pa); PN-EN 12208 |
* Izolacyjność termiczna uzależniona jest od kombinacji złożeń profili oraz grubości wypełnienia





