Uf od 2,145 W/m²K
IZOLACJA CIEPLNA
fix 20-69 mm,
drzwi 20-69 mm
SZKLENIE
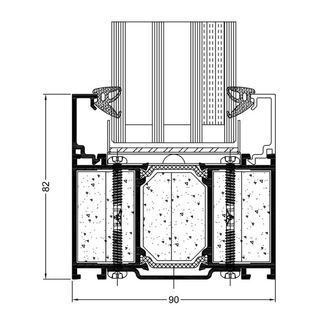
90 mm
GŁĘBOKOŚĆ PROFILI

- charakterystyka systemu:
– zastosowanie: zabudowa wewnętrzna i zewnętrzna
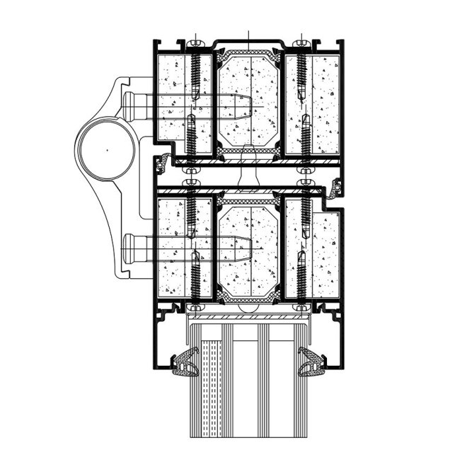
– głębokość zabudowy 90 mm
– symetryczna budowa profilu, komora środkowa wypełniona wkładami gipsowymi (między przekładkami termicznymi): dla EI30, wszystkie komory wypełnione gipsem dla EI60
– system kompatybilny z systemami o głębokości zabudowy 90 mm (STAR)
– możliwość stosowania pakietu szybowego dwukomorowego (szklenie: od 20 mm do 69 mm)
– możliwość wypełnienia panelowego (panel o grubości 60 mm): panele z wypełnieniem wełną mineralną (Up=0,57 W/m2K), panele z wypełnieniem gipsowym
– konstrukcje: drzwiowe jedno- i dwuskrzydłowe, przeszklenia stałe
– możliwość wykonania konstrukcji o odporności ogniowej i dymoszczelnej
– możliwość wykonania konstrukcji drzwi do stosowania na drogach ewakuacyjnych
– maksymalne wymiary konstrukcji przebadanej: 6000 x 3000 mm (ścianka stała, jedna tafla szklana)
– maksymalne wymiary drzwi jednoskrzydłowych: 1650 x 2870 mm
– maksymalne wymiary drzwi dwuskrzydłowych: 3170 x 2870 mm
– zamki jedno- lub wielopunktowe, elektrozaczepy, okucia paniczne
– zawiasy nakładkowe, zawiasy rolkowe, zawiasy INOX
– możliwe do zastosowania rozwiązania progowe, bezprogowe
– kopniak (wysoki cokół)
– możliwość stosowania kratki wentylacyjnej
– optymalizacja profili (jeden rodzaj profili do ramy drzwiowej i skrzydła)
– szybka i prosta prefabrykacja (brak obróbki listwy szklącej) - akustyka – badania akustyczne na drzwi dwuskrzydłowe o odporności ogniowej EI30, EI60 zabudowy wewnętrzne i zewnętrzne: od 39 do 47 dB
- szeroki wybór kolorystyki – paleta RAL (Qualicoat 1518), kolory strukturalne, Aliplast Wood Colour Effect – kolory drewnopodobne, Aliplast Loft View – kolory imitujące kamienne powierzchnie (Qualideco PL-0001), anoda (Qualanod 1808), bikolor
Specyfikacja produktu
| SYSTEM | MATERIAŁ | GŁĘBOKOŚĆ OŚCIEŻNICY | GŁĘBOKOŚĆ SKRZYDŁA | GRUBOŚĆ SZKLENIA | TYP DRZWI |
| FR90 fix | aluminium / poliamid | 90 mm | – | fix 20-69 mm | – |
| FR90 drzwi | aluminium / poliamid | 90 mm | 90 mm | drzwi 20-69 mm | jedno-, dwuskrzydłowe |
Dane techniczne
| SYSTEM | IZOLACYJNOŚĆ TERMICZNA UF* | PRZEPUSZCZALNOŚĆ POWIETRZA | OBCIĄŻENIE WIATREM | WODOSZCZELNOŚĆ |
| FR90 | Uf od 2,145 W/m2K | Klasa 4; PN-EN 12207 | Klasa C1/B2; PN-EN 12210 | Klasa 4A (150 Pa); PN-EN12208 |
*Izolacyjność termiczna uzależniona jest od kombinacji złożeń profili oraz grubości wypełnienia




