Econoline 51
System przeznaczony do konstruowania nie wymagających izolacji termicznej elementów architektonicznej zabudowy wewnętrznej i zewnętrznej: okien, drzwi oraz segmentów ścian działowych przeznaczonych do ogólnego stosowania w budynkach użyteczności publicznej i przemysłowych (w pomieszczeniach biurowych)
system kompatybilny z innymi systemami Aliplast: wspólne listwy szklące, uszczelki, narożniki i okucia
listwy szklące dostępne w wariantach: prostokątnym i zaokrąglonym
na bazie systemu Econoline istnieje możliwość projektowania drzwi panelowych (Econoline panel doors)

Econoline 51
System przeznaczony do konstruowania drzwi i okien bez izolacji termicznej; pozwala na projektowanie lekkiej, trwałej i funkcjonalnej zabudowy
Istnieje możliwość konstruowania drzwi przesuwnych, wahadłowych, łączenie ścian pod dowolnym kątem oraz wzmacnianie już wykonanych, a nawet zamontowanych elementów
| CECHY | |
|---|---|
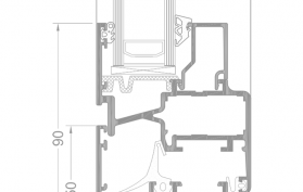
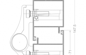
| GŁĘBOKOŚĆ OŚCIEŻNICY | 51 mm |
| GŁĘBOKOŚĆ SKRZYDŁA | 60 mm |
| SZKLENIE | od 37 mm |
zalety
- istnieje możliwość wbudowania drzwi systemu Econoline w ściany działowe wykonane z segmentów Econoline lub w inne ściany o dowolnej konstrukcji
- dostępna opcja z ukrytym zawiasem / ROTO Solid C (zawias posiada funkcję FixClick pozwalającą na szybkie i bezpieczne montowanie skrzydła drzwiowego)
- konstrukcja systemu pozwala na stosowanie zawiasów wrębowych, łatwiejszych w montażu i bardziej ekonomicznych
- na bazie tego systemu można budować drzwi dymoszczelne – drzwi systemu Econoline z funkcją dymoszczelności spełniają kryteria klas dymoszczelności Sa, Sm zgodnie z PN-EN 13501-2+A1:2010)
- możliwość gięcia profili (dokładna specyfikacja profili oraz szczegóły dotyczące parametrów technicznych gięcia profili – dostępne w strefie autoryzowanej na stronie www.aliplast.pl)
- szeroki wybór kolorystyki – paleta RAL (Qualicoat 1518), kolory strukturalne, kolory drewnopodobne Aliplast Wood Colour Effect (Qualideco PL-0001), anoda (Qualanod 1808), bikolor


